NIEUWERKERK AAN DEN IJSSEL
€ 370.000
Kerklaan 100-a
4 Kamers
1 Badkamers
2 Slaapkamers
91 m²
E
ZONNETERRAS
Bezichtiging plannen
Beschrijving
Kerklaan 100 A Nieuwerkerk aan den IJssel
Verrassende bovenwoning met groot terras in karaktervolle oude dorpskern
Welkom aan de Kerklaan in Nieuwerkerk aan den IJssel, waar u deze charmante en verrassend ruime bovenwoning vindt, verscholen in de sfeervolle oude dorpskern. Hier woont u op een unieke plek: met uitzicht over de karaktervolle Dorpsstraat, gezellige winkels en horecagelegenheden om de hoek én een heerlijk groot dakterras aan de rustige achterzijde. De woning maakt deel uit van een kleine en stille VvE, wat zorgt voor een rustige woonsfeer en weinig verplichtingen. De woning biedt twee slaapkamers, een lichte woonkamer met openhaard, een moderne keuken met kookeiland en volop sfeer in elke ruimte. Een heerlijke plek waar comfort, karakter en leef gemak samenkomen.
Indeling
Entree
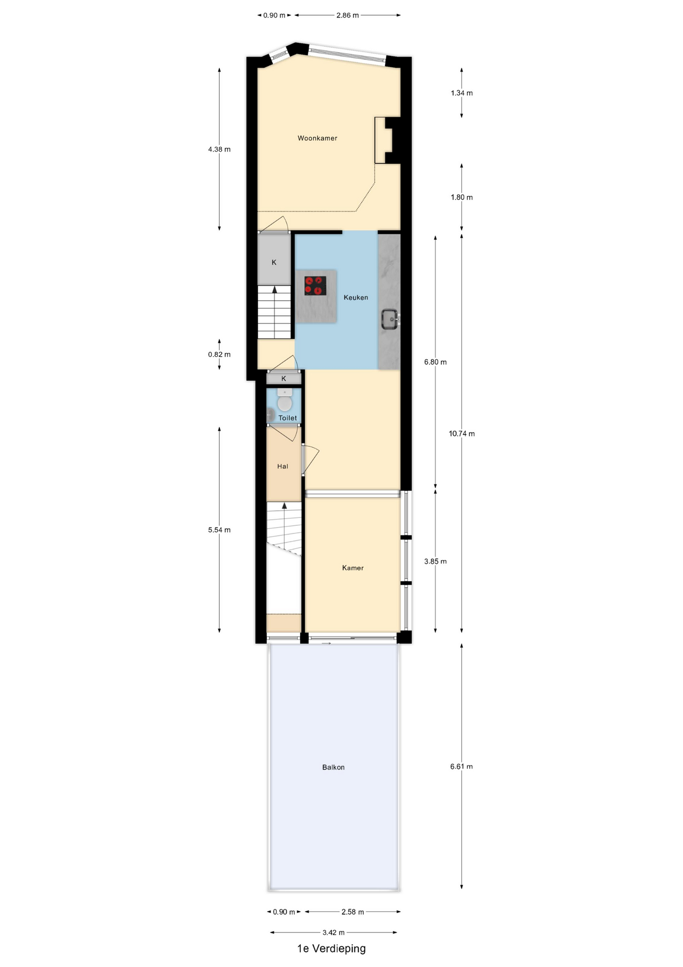
De entree van de woning bevindt zich aan de achterzijde, bereikbaar via een knus hofje met gratis parkeergelegenheid. Direct naast de voordeur vindt u de berging. Bij binnenkomst stapt u in de langgerekte hal, met aan het einde de trap naar de eerste verdieping. In de hal op de eerste verdieping vindt u tevens het toilet en de deur naar de woonkamer en keuken.
Keuken
Wanneer u via de hal de eerste verdieping bereikt, komt u binnen ter hoogte van de eettafel en de keuken. In september 2022 is deze ruimte volledig vernieuwd: muren zijn verwijderd en er is een moderne keuken met kookeiland geplaatst.
De strak vormgegeven mat witte keuken is uitgerust met een inbouw koel-/vriescombinatie, een oven op werkhoogte en een vaatwasser naast de spoelzone. Het kookeiland beschikt over een inductiekookplaat met geïntegreerde afzuiging. Achter de wand bij het eiland vindt u de trap naar de tweede verdieping.
Woonkamer
Loopt u door de keuken heen, dan bereikt u de gezellige woonkamer aan de voorzijde van de woning. Vanuit de erker kijkt u de sfeervolle Dorpsstraat in. De openhaard vormt hier een prachtige blikvanger en zorgt voor extra sfeer. De vergrijsde parketvloer loopt door over de gehele verdieping én naar de tweede verdieping, wat de woning een rustige en luxe uitstraling geeft.
Onder de trap vindt u een praktische bergkast, ideaal voor bijvoorbeeld de stofzuiger en andere huishoudelijke benodigdheden.
Aan de andere kant van deze woonverdieping is een extra zitplek én een fijne werkhoek gecreëerd. Dankzij de grote ramen valt hier veel natuurlijk licht binnen. Vanuit deze ruimte bereikt u via de schuifpui het royale dakterras.
Dakterras
Het dakterras op de eerste verdieping kijkt uit over het rustige hofje. Hier geniet u in alle privacy van de zon, een kop koffie of een gezellige borrel. Een heerlijke buitenruimte midden in het oude dorp met veel zon maar ook absolute rust.
Tweede verdieping
Wanneer u de trap op loopt, komt u op een lichte overloop dankzij het grote daklicht. Op deze verdieping zijn de twee slaapkamers en de badkamer te vinden.
Slaapkamers
Aan de straatzijde ligt de grootste slaapkamer. Deze kamer heeft deels een schuine kap en biedt prachtig uitzicht op de nabijgelegen kerk.
De gehele verdieping is in februari 2024 voorzien van nieuwe dakbekleding.
De tweede slaapkamer, gelegen aan de achterzijde, is iets compacter en beschikt over een grote inbouwkast over de volledige breedte. Vanuit deze kamer kijkt u uit op het dakterras en de binnenplaats.
Badkamer
De nieuwe badkamer (2024) bevindt zich tussen beide slaapkamers in en heeft een prettig formaat. De ruimte is voorzien van een douche, een brede wastafel met dubbele kraan en een royaal opbergmeubel. Ook treft u hier de wasmachineaansluiting en achter een muur de cv-installatie.
Berging
De berging ligt direct naast de voordeur en beschikt over een raam dat voor daglicht zorgt. Ook hier is een wasmachineaansluiting aanwezig, wat extra flexibiliteit biedt.
Parkeren
In het hofje bij de entree en in de omliggende straten kunt u gratis parkeren. Er is vrijwel altijd plek direct voor de deur.
Omgeving
Wonen aan de Kerklaan betekent genieten van rust, ruimte en een gezellig dorps karakter. De buurt is groen en kindvriendelijk, met voorzieningen op loop- of fietsafstand. Of u nu boodschappen wilt doen, gezellig wilt eten of wilt wandelen langs de Ringvaart: het ligt hier allemaal binnen handbereik.
De sfeer is warm en gemoedelijk, wat zorgt voor een veilige en prettige woonomgeving. Scholen, sportclubs en speeltuinen liggen op korte afstand en de verbindingen met Rotterdam, Gouda en de rest van de Randstad zijn uitstekend. U woont hier rustig, maar toch bijzonder centraal.
Kortom: een fantastische woonplek in een charmante omgeving, een plek waar u zich direct thuis zult voelen.
Verrassende bovenwoning met groot terras in karaktervolle oude dorpskern
Welkom aan de Kerklaan in Nieuwerkerk aan den IJssel, waar u deze charmante en verrassend ruime bovenwoning vindt, verscholen in de sfeervolle oude dorpskern. Hier woont u op een unieke plek: met uitzicht over de karaktervolle Dorpsstraat, gezellige winkels en horecagelegenheden om de hoek én een heerlijk groot dakterras aan de rustige achterzijde. De woning maakt deel uit van een kleine en stille VvE, wat zorgt voor een rustige woonsfeer en weinig verplichtingen. De woning biedt twee slaapkamers, een lichte woonkamer met openhaard, een moderne keuken met kookeiland en volop sfeer in elke ruimte. Een heerlijke plek waar comfort, karakter en leef gemak samenkomen.
Indeling
Entree
De entree van de woning bevindt zich aan de achterzijde, bereikbaar via een knus hofje met gratis parkeergelegenheid. Direct naast de voordeur vindt u de berging. Bij binnenkomst stapt u in de langgerekte hal, met aan het einde de trap naar de eerste verdieping. In de hal op de eerste verdieping vindt u tevens het toilet en de deur naar de woonkamer en keuken.
Keuken
Wanneer u via de hal de eerste verdieping bereikt, komt u binnen ter hoogte van de eettafel en de keuken. In september 2022 is deze ruimte volledig vernieuwd: muren zijn verwijderd en er is een moderne keuken met kookeiland geplaatst.
De strak vormgegeven mat witte keuken is uitgerust met een inbouw koel-/vriescombinatie, een oven op werkhoogte en een vaatwasser naast de spoelzone. Het kookeiland beschikt over een inductiekookplaat met geïntegreerde afzuiging. Achter de wand bij het eiland vindt u de trap naar de tweede verdieping.
Woonkamer
Loopt u door de keuken heen, dan bereikt u de gezellige woonkamer aan de voorzijde van de woning. Vanuit de erker kijkt u de sfeervolle Dorpsstraat in. De openhaard vormt hier een prachtige blikvanger en zorgt voor extra sfeer. De vergrijsde parketvloer loopt door over de gehele verdieping én naar de tweede verdieping, wat de woning een rustige en luxe uitstraling geeft.
Onder de trap vindt u een praktische bergkast, ideaal voor bijvoorbeeld de stofzuiger en andere huishoudelijke benodigdheden.
Aan de andere kant van deze woonverdieping is een extra zitplek én een fijne werkhoek gecreëerd. Dankzij de grote ramen valt hier veel natuurlijk licht binnen. Vanuit deze ruimte bereikt u via de schuifpui het royale dakterras.
Dakterras
Het dakterras op de eerste verdieping kijkt uit over het rustige hofje. Hier geniet u in alle privacy van de zon, een kop koffie of een gezellige borrel. Een heerlijke buitenruimte midden in het oude dorp met veel zon maar ook absolute rust.
Tweede verdieping
Wanneer u de trap op loopt, komt u op een lichte overloop dankzij het grote daklicht. Op deze verdieping zijn de twee slaapkamers en de badkamer te vinden.
Slaapkamers
Aan de straatzijde ligt de grootste slaapkamer. Deze kamer heeft deels een schuine kap en biedt prachtig uitzicht op de nabijgelegen kerk.
De gehele verdieping is in februari 2024 voorzien van nieuwe dakbekleding.
De tweede slaapkamer, gelegen aan de achterzijde, is iets compacter en beschikt over een grote inbouwkast over de volledige breedte. Vanuit deze kamer kijkt u uit op het dakterras en de binnenplaats.
Badkamer
De nieuwe badkamer (2024) bevindt zich tussen beide slaapkamers in en heeft een prettig formaat. De ruimte is voorzien van een douche, een brede wastafel met dubbele kraan en een royaal opbergmeubel. Ook treft u hier de wasmachineaansluiting en achter een muur de cv-installatie.
Berging
De berging ligt direct naast de voordeur en beschikt over een raam dat voor daglicht zorgt. Ook hier is een wasmachineaansluiting aanwezig, wat extra flexibiliteit biedt.
Parkeren
In het hofje bij de entree en in de omliggende straten kunt u gratis parkeren. Er is vrijwel altijd plek direct voor de deur.
Omgeving
Wonen aan de Kerklaan betekent genieten van rust, ruimte en een gezellig dorps karakter. De buurt is groen en kindvriendelijk, met voorzieningen op loop- of fietsafstand. Of u nu boodschappen wilt doen, gezellig wilt eten of wilt wandelen langs de Ringvaart: het ligt hier allemaal binnen handbereik.
De sfeer is warm en gemoedelijk, wat zorgt voor een veilige en prettige woonomgeving. Scholen, sportclubs en speeltuinen liggen op korte afstand en de verbindingen met Rotterdam, Gouda en de rest van de Randstad zijn uitstekend. U woont hier rustig, maar toch bijzonder centraal.
Kortom: een fantastische woonplek in een charmante omgeving, een plek waar u zich direct thuis zult voelen.
Beschrijving
Kerklaan 100 A Nieuwerkerk aan den IJssel
Verrassende bovenwoning met groot terras in karaktervolle oude dorpskern
Welkom aan de Kerklaan in Nieuwerkerk aan den IJssel, waar u deze charmante en verrassend ruime bovenwoning vindt, verscholen in de sfeervolle oude dorpskern. Hier woont u op een unieke plek: met uitzicht over de karaktervolle Dorpsstraat, gezellige winkels en horecagelegenheden om de hoek én een heerlijk groot dakterras aan de rustige achterzijde. De woning maakt deel uit van een kleine en stille VvE, wat zorgt voor een rustige woonsfeer en weinig verplichtingen. De woning biedt twee slaapkamers, een lichte woonkamer met openhaard, een moderne keuken met kookeiland en volop sfeer in elke ruimte. Een heerlijke plek waar comfort, karakter en leef gemak samenkomen.
Indeling
Entree
De entree van de woning bevindt zich aan de achterzijde, bereikbaar via een knus hofje met gratis parkeergelegenheid. Direct naast de voordeur vindt u de berging. Bij binnenkomst stapt u in de langgerekte hal, met aan het einde de trap naar de eerste verdieping. In de hal op de eerste verdieping vindt u tevens het toilet en de deur naar de woonkamer en keuken.
Keuken
Wanneer u via de hal de eerste verdieping bereikt, komt u binnen ter hoogte van de eettafel en de keuken. In september 2022 is deze ruimte volledig vernieuwd: muren zijn verwijderd en er is een moderne keuken met kookeiland geplaatst.
De strak vormgegeven mat witte keuken is uitgerust met een inbouw koel-/vriescombinatie, een oven op werkhoogte en een vaatwasser naast de spoelzone. Het kookeiland beschikt over een inductiekookplaat met geïntegreerde afzuiging. Achter de wand bij het eiland vindt u de trap naar de tweede verdieping.
Woonkamer
Loopt u door de keuken heen, dan bereikt u de gezellige woonkamer aan de voorzijde van de woning. Vanuit de erker kijkt u de sfeervolle Dorpsstraat in. De openhaard vormt hier een prachtige blikvanger en zorgt voor extra sfeer. De vergrijsde parketvloer loopt door over de gehele verdieping én naar de tweede verdieping, wat de woning een rustige en luxe uitstraling geeft.
Onder de trap vindt u een praktische bergkast, ideaal voor bijvoorbeeld de stofzuiger en andere huishoudelijke benodigdheden.
Aan de andere kant van deze woonverdieping is een extra zitplek én een fijne werkhoek gecreëerd. Dankzij de grote ramen valt hier veel natuurlijk licht binnen. Vanuit deze ruimte bereikt u via de schuifpui het royale dakterras.
Dakterras
Het dakterras op de eerste verdieping kijkt uit over het rustige hofje. Hier geniet u in alle privacy van de zon, een kop koffie of een gezellige borrel. Een heerlijke buitenruimte midden in het oude dorp met veel zon maar ook absolute rust.
Tweede verdieping
Wanneer u de trap op loopt, komt u op een lichte overloop dankzij het grote daklicht. Op deze verdieping zijn de twee slaapkamers en de badkamer te vinden.
Slaapkamers
Aan de straatzijde ligt de grootste slaapkamer. Deze kamer heeft deels een schuine kap en biedt prachtig uitzicht op de nabijgelegen kerk.
De gehele verdieping is in februari 2024 voorzien van nieuwe dakbekleding.
De tweede slaapkamer, gelegen aan de achterzijde, is iets compacter en beschikt over een grote inbouwkast over de volledige breedte. Vanuit deze kamer kijkt u uit op het dakterras en de binnenplaats.
Badkamer
De nieuwe badkamer (2024) bevindt zich tussen beide slaapkamers in en heeft een prettig formaat. De ruimte is voorzien van een douche, een brede wastafel met dubbele kraan en een royaal opbergmeubel. Ook treft u hier de wasmachineaansluiting en achter een muur de cv-installatie.
Berging
De berging ligt direct naast de voordeur en beschikt over een raam dat voor daglicht zorgt. Ook hier is een wasmachineaansluiting aanwezig, wat extra flexibiliteit biedt.
Parkeren
In het hofje bij de entree en in de omliggende straten kunt u gratis parkeren. Er is vrijwel altijd plek direct voor de deur.
Omgeving
Wonen aan de Kerklaan betekent genieten van rust, ruimte en een gezellig dorps karakter. De buurt is groen en kindvriendelijk, met voorzieningen op loop- of fietsafstand. Of u nu boodschappen wilt doen, gezellig wilt eten of wilt wandelen langs de Ringvaart: het ligt hier allemaal binnen handbereik.
De sfeer is warm en gemoedelijk, wat zorgt voor een veilige en prettige woonomgeving. Scholen, sportclubs en speeltuinen liggen op korte afstand en de verbindingen met Rotterdam, Gouda en de rest van de Randstad zijn uitstekend. U woont hier rustig, maar toch bijzonder centraal.
Kortom: een fantastische woonplek in een charmante omgeving, een plek waar u zich direct thuis zult voelen.
Verrassende bovenwoning met groot terras in karaktervolle oude dorpskern
Welkom aan de Kerklaan in Nieuwerkerk aan den IJssel, waar u deze charmante en verrassend ruime bovenwoning vindt, verscholen in de sfeervolle oude dorpskern. Hier woont u op een unieke plek: met uitzicht over de karaktervolle Dorpsstraat, gezellige winkels en horecagelegenheden om de hoek én een heerlijk groot dakterras aan de rustige achterzijde. De woning maakt deel uit van een kleine en stille VvE, wat zorgt voor een rustige woonsfeer en weinig verplichtingen. De woning biedt twee slaapkamers, een lichte woonkamer met openhaard, een moderne keuken met kookeiland en volop sfeer in elke ruimte. Een heerlijke plek waar comfort, karakter en leef gemak samenkomen.
Indeling
Entree
De entree van de woning bevindt zich aan de achterzijde, bereikbaar via een knus hofje met gratis parkeergelegenheid. Direct naast de voordeur vindt u de berging. Bij binnenkomst stapt u in de langgerekte hal, met aan het einde de trap naar de eerste verdieping. In de hal op de eerste verdieping vindt u tevens het toilet en de deur naar de woonkamer en keuken.
Keuken
Wanneer u via de hal de eerste verdieping bereikt, komt u binnen ter hoogte van de eettafel en de keuken. In september 2022 is deze ruimte volledig vernieuwd: muren zijn verwijderd en er is een moderne keuken met kookeiland geplaatst.
De strak vormgegeven mat witte keuken is uitgerust met een inbouw koel-/vriescombinatie, een oven op werkhoogte en een vaatwasser naast de spoelzone. Het kookeiland beschikt over een inductiekookplaat met geïntegreerde afzuiging. Achter de wand bij het eiland vindt u de trap naar de tweede verdieping.
Woonkamer
Loopt u door de keuken heen, dan bereikt u de gezellige woonkamer aan de voorzijde van de woning. Vanuit de erker kijkt u de sfeervolle Dorpsstraat in. De openhaard vormt hier een prachtige blikvanger en zorgt voor extra sfeer. De vergrijsde parketvloer loopt door over de gehele verdieping én naar de tweede verdieping, wat de woning een rustige en luxe uitstraling geeft.
Onder de trap vindt u een praktische bergkast, ideaal voor bijvoorbeeld de stofzuiger en andere huishoudelijke benodigdheden.
Aan de andere kant van deze woonverdieping is een extra zitplek én een fijne werkhoek gecreëerd. Dankzij de grote ramen valt hier veel natuurlijk licht binnen. Vanuit deze ruimte bereikt u via de schuifpui het royale dakterras.
Dakterras
Het dakterras op de eerste verdieping kijkt uit over het rustige hofje. Hier geniet u in alle privacy van de zon, een kop koffie of een gezellige borrel. Een heerlijke buitenruimte midden in het oude dorp met veel zon maar ook absolute rust.
Tweede verdieping
Wanneer u de trap op loopt, komt u op een lichte overloop dankzij het grote daklicht. Op deze verdieping zijn de twee slaapkamers en de badkamer te vinden.
Slaapkamers
Aan de straatzijde ligt de grootste slaapkamer. Deze kamer heeft deels een schuine kap en biedt prachtig uitzicht op de nabijgelegen kerk.
De gehele verdieping is in februari 2024 voorzien van nieuwe dakbekleding.
De tweede slaapkamer, gelegen aan de achterzijde, is iets compacter en beschikt over een grote inbouwkast over de volledige breedte. Vanuit deze kamer kijkt u uit op het dakterras en de binnenplaats.
Badkamer
De nieuwe badkamer (2024) bevindt zich tussen beide slaapkamers in en heeft een prettig formaat. De ruimte is voorzien van een douche, een brede wastafel met dubbele kraan en een royaal opbergmeubel. Ook treft u hier de wasmachineaansluiting en achter een muur de cv-installatie.
Berging
De berging ligt direct naast de voordeur en beschikt over een raam dat voor daglicht zorgt. Ook hier is een wasmachineaansluiting aanwezig, wat extra flexibiliteit biedt.
Parkeren
In het hofje bij de entree en in de omliggende straten kunt u gratis parkeren. Er is vrijwel altijd plek direct voor de deur.
Omgeving
Wonen aan de Kerklaan betekent genieten van rust, ruimte en een gezellig dorps karakter. De buurt is groen en kindvriendelijk, met voorzieningen op loop- of fietsafstand. Of u nu boodschappen wilt doen, gezellig wilt eten of wilt wandelen langs de Ringvaart: het ligt hier allemaal binnen handbereik.
De sfeer is warm en gemoedelijk, wat zorgt voor een veilige en prettige woonomgeving. Scholen, sportclubs en speeltuinen liggen op korte afstand en de verbindingen met Rotterdam, Gouda en de rest van de Randstad zijn uitstekend. U woont hier rustig, maar toch bijzonder centraal.
Kortom: een fantastische woonplek in een charmante omgeving, een plek waar u zich direct thuis zult voelen.
powered by Friva | Lees ons Privacybeleid





































